





Junta de expansão limitada com flange duplo
A junta de expansão limitada de flange dupla é composta pelas partes principais, como corpo, anel de vedação, bucha, tubo curto de expansão, etc. Um dispositivo de limite é adicionado com base no desempenho original da junta de expansão de manga solta, e uma porca dupla é usada para travá-la na quantidade máxima de expansão. A tubulação pode ser livremente expandida e contraída dentro da quantidade de expansão permitida. Uma vez que exceda sua quantidade máxima de expansão, ela será limitada para garantir a operação segura da tubulação. É particularmente adequado para conexões em tubulações com vibração ou uma certa inclinação e curvatura.
Instalação de junta de expansão limitada de flange dupla:
Durante a instalação, ajuste o comprimento da conexão entre as duas extremidades do produto e o flange, aperte os parafusos da glândula diagonalmente e uniformemente e, em seguida, ajuste as porcas de limite, para que a tubulação possa ser livremente estendida e retraída dentro da faixa de expansão, bloqueie a quantidade de expansão e garanta a operação segura da tubulação. Ao trabalhar, ele pode transmitir o impulso axial reverso para toda a tubulação, o que pode reduzir o impulso de pressão (força da placa cega) das peças conectadas e compensar o erro de instalação da tubulação. A conexão de transmissão de força de flange dupla é usada principalmente para conexões de manga solta de bombas, válvulas e outros acessórios.
Classificação de juntas de dilatação limitadas de flange dupla
ter:BF(VSSJA-1)Tipo junta de expansão limitada de flange simples,B2F(VSSJA-2)Tipo junta de expansão limitada de flange dupla,POR(SSJB-3)Tipo junta de expansão limitada tipo glândula,Sim(SSJB)Junta de expansão tipo glândula, junta de expansão limitada tipo flange, junta de expansão tipo manga solta tipo flange.
Método de conexão: tipo flange,
Pressão do trabalho:0,6-4,0 MPA,
Meridiano nominal:65-3200 mm,
Meio: água, esgoto.
Temperatura de operação:≤170℃,
Material de vedação:NBR,
Padrões de fabricação:GB/T12465-2002
Os principais materiais das juntas de dilatação são:
QT-400(Ferro Dúctil),Pergunta 235A(Aço carbono),HT200(Ferro cinzento),1Cr18Ni9Ti(Aço inoxidável)。 
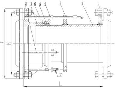
Dimensões principais:
número de série | nome | quantidade | Material |
1 | Corpo Principal | 1 | QT400-15、Q235A、ZG230-450、20 |
2 | anel de vedação | 1 | NBR |
3 | Glândula | 1 | QT400-15、Q235A、ZG230-450、20 |
4 | Limite de flange de tubo curto | 1 | Q235A、20、16 minutos |
5 | noz | 4n | Q235A、20、1Cr18Ni9Ti |
6 | Garanhão longo | n | Q235A、35、1Cr18Ni9Ti |
7 | pregos | n | Q235A、35、1Cr18Ni9Ti |
Diâmetro nominal | Diâmetro externo do tubo | Dimensões | Esticar | Tamanho da conexão do flange | ||||||
Dw | eu | L1 | 0,6MPa | 1,0 MPa | ||||||
D | D1 | e | D | D1 | e | |||||
65 | 76 | 340 | 105 | 50 | 160 | 130 | 4-14 | 185 | 145 | 4-18 |
80 | 89 | 190 | 150 | 4-18 | 200 | 160 | 8-18 | |||
100 | 108 | 210 | 170 | 220 | 180 | |||||
114 | ||||||||||
125 | 133 | 240 | 200 | 8-18 | 250 | 210 | ||||
140 | ||||||||||
150 | 159 | 265 | 225 | 285 | 240 | 8-22 | ||||
168 | ||||||||||
200 | 219 | 320 | 280 | 340 | 295 | |||||
250 | 273 | 370 | 335 | 12-18 | 395 | 350 | 12-22 | |||
300 | 325 | 350 | 130 | 65 | 440 | 395 | 12-22 | 445 | 400 | |
350 | 377 | 490 | 445 | 505 | 460 | 16-22 | ||||
400 | 426 | 540 | 495 | 16-22 | 565 | 515 | 16-26 | |||
450 | 480 | 595 | 550 | 615 | 565 | 20-26 | ||||
500 | 530 | 645 | 600 | 20-22 | 670 | 620 | ||||
600 | 630 | 755 | 705 | 20-26 | 780 | 725 | 20-30 | |||
700 | 720 | 860 | 810 | 24-26 | 895 | 840 | 24-30 | |||


